今天齐家栗子分享的案例是109㎡的三房两厅装修,对于四口之家而言,房子不大,但很温馨。
经典案例
面积:109㎡
坐标:安徽
户型:三室两厅
亮点:以现代简约风为基础,大胆使用红绿撞色,功能齐全又清爽
户型图

文章插图
原户型布局相对合理,承重墙较多,改造空间不大。主要问题是入户正对卧室卫生间,需要进行调整。

文章插图
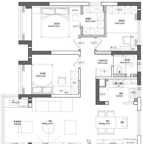
设计师将主卧卫生间直接改成衣帽间,同时调整门洞方向。打通阳台,扩大客厅空间,满足业主对大客厅的诉求。
客厅

文章插图
没有独立的玄关空间,设计师将鞋柜与电视柜一起设计,满足收纳需求。横梁下方的柜内隐藏承重墙,假门设计保持整洁统一。

文章插图
木工板打底的沙发墙,一直延伸到过道,与其它房门衔接,形成一个完整的木饰面效果。

文章插图
卧室门采用同色木纹隐形设计,美观大气。地面是中灰哑光地砖错缝铺贴,同色美缝剂美缝,充满时尚感。

文章插图
将阳台纳入客厅,空间通透明亮。客厅左右两侧均有木质元素,相互呼应,和谐统一。

文章插图
通透的户型格局,简洁的硬装设计,没有过多的装饰,客厅干净整洁,不失品位。
厨房

文章插图
厨房整体以白色为主色调,抛弃传统油烟机,改用集成灶搭配大单盆水槽,美观实用两不误。
餐厅

文章插图
餐厅集合了餐桌、中岛台和西厨,按照冰箱的尺寸定制了餐边柜,增加收纳空间,保持空间整洁有序。

文章插图
餐厅地面与客厅保持一致,灰色地砖错缝通铺。餐厨之间采用三轨联动吊轨移门,整洁美观。
卫生间

文章插图
洗手台外移,卫生间干湿分离,墙面羽毛瓷砖白色+绿色分色设计,整体效果时尚耐看,充满层次感。
主卧

文章插图
主卧采用红绿撞色设计,地面是木纹砖,人字形铺贴,窗帘也采用拼色设计,满足业主个性化的需求。

文章插图
原主卫改成衣帽间,弧形门洞设计。空间不大,采用无柜门设计,门洞安装布帘,细节处处精致。
次卧

文章插图
次卧是女儿房,抛弃传统的粉色设计,整体以姜黄+奶白为主色调,营造不一样的温馨感。
今天齐家栗子分享的案例是109㎡的三房两厅装修,对于四口之家而言,房子不大,但很温馨。
经典案例
面积:109㎡
坐标:安徽
户型:三室两厅
亮点:以现代简约风为基础,大胆使用红绿撞色,功能齐全又清爽
户型图