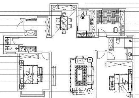
天津力天装饰102平米的名居花园三室两厅一厨一卫的户型。整体户型方方正正,空间划分的已经很明确,需要改动的地方很少。
平面布局图:

文章插图
效果图鉴赏:
1、客厅:
客厅米白色的沙发搭配灰色渐变的地毯,还有大理石纹地砖,三者相得映彰,清新明快。

文章插图

文章插图
2、餐厅:
户型通透明亮,加上瓷砖、主色调的加持,让整体空间更显时尚、明亮,金属元素的使用让整个空间增添一抹轻奢质感。餐厅采用了白色的餐椅和黑色的餐桌,搭配白色的餐边柜,清新简约。

文章插图

文章插图
3、卧室:
卧室米黄色的墙面营造一种温馨的感觉。蓝色的抱枕和窗帘壁画相呼应。木地板脚感舒适温暖,简洁实用的床头柜上摆放了绿植装饰,活力十足。

文章插图

文章插图
【 效果图|现代风格装修效果图,102平三室超精致,整体效果特棒,像别墅!】三室两厅一厨一卫的户型,做了现代风格,满足了住用的实用功能,分区明显动静皆宜,突出温馨且不失时尚之感。这样的装修效果图,您喜欢吗?如果您也有装修方面的需求,可以直接拨打咨询热线:15902212310
天津力天装饰102平米的名居花园三室两厅一厨一卫的户型。整体户型方方正正,空间划分的已经很明确,需要改动的地方很少。
平面布局图: