
文章插图
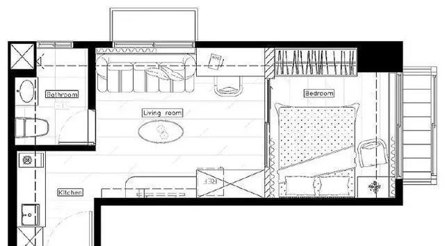
今天齐家安安要给大家分享的是一间30㎡迷你单身公.寓,在简洁线条中添加淡彩装饰,并用明亮的茶几、单椅、无框画等彩色配件增加活泼气氛。整体空间丝毫不拥挤杂乱,而且收纳不输大.户.型,一个人住太舒服了!

文章插图
客厅奶咖色的墙面、原木色的地板,自然舒.适温馨感满满。家具选择上以轻巧实用为主,让空间变得更灵活。

文章插图
合理利用角落空间布置简易书房,一桌一椅一置物架,简单又实用。

文章插图
电视墙一分为二,整体效果更协调,定制储物柜增加收纳。

文章插图

文章插图
开.放.式厨房设计,一字型橱柜设计,虽然收纳有限,但一人居住或两人居住完全足够了。

文章插图

文章插图
卧室,选用黑框茶色玻璃推拉门作为隔断划分区域,衬托室内温暖氛围也能稍微降低白天卧室侧的亮光。拉门内侧设置遮光窗帘,兼顾通透格局和卧室隐私。

文章插图
卧室布置的简洁舒.适,灰白两种普通的色彩,搭配在一起却非常受欢迎。卧室衣柜,原木色自然亲和,真是百看不腻。

文章插图
卫生间选择耐看的灰白色搭配,空间有限没有做干湿分离,浴室柜采用悬挂式,占用面积小清洁方便,镜柜增加收纳空间。

文章插图
【 实用性|30㎡的单身公寓这样装,实用性不输大户型,一个人住太舒服了!】齐家栗子提供更多装修资讯,喜欢的朋友记得收藏和关注哦!图片来源网络:侵权联系删除